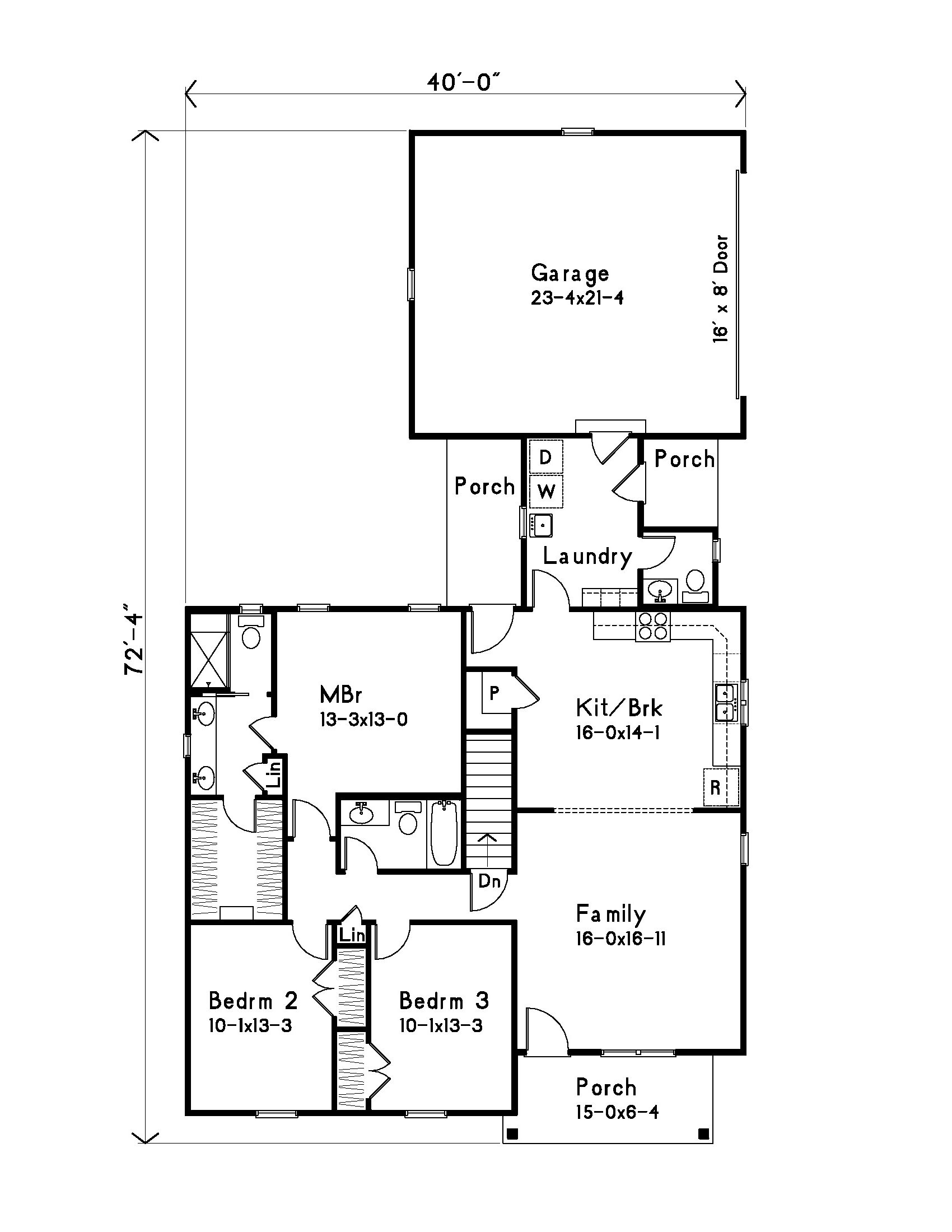
Description
Ranch model plan designed for a narrow lot. Efficient floor plan with no wasted space. Covered porch each side of laundry room for convenient access.
Details
Beds
3
Sqft
1519
Baths Full
2
Baths Half
1
Levels
1
Sqft Floors
First Floor:1519
Exterior Wall
2x4
Roof Framing
Truss
House Dimensions
Width: 40'0"
Depth: 72'4"
Approx. Height: 19'6"
Roof Pitch
6/12 Main Roof
6/12 Front Gable
Ceiling Height
First Floor 9-0
Features
Foundation
Basement
Garage
Two carSide-entry
Bedroom Features
Main floor master bedroomWalk-in closet
Kitchen Features
Walk-in Pantry
Interior Features
LaundryFamily room
Exterior Features
Covered rear porchCovered front porch
Special Features
Fireplace














